租- AK5886新樹立體廠房物流中心全棟
基本資料Basic information : | ||
地 址 Address | 新北市新莊區新樹路 Xinshu Road, Xinzhuang District, New Taipei City | |
租金 / 押金 Rent | NT 7,300,000 元/月 / 兩個月 NT 7,300,000 Yuan / Month / Two months | |
格 局 Pattern | 0房 / 1廳 / 1衛 0Room / 1Hall / 1Wei | |
權狀總坪數 Total weight ㎡ | 8045.18 坪 26595.64 ㎡ | |
建築完成日期 Construction completion date | 114年 11月 01日 114 Years November 01 | |
朝 向 Towards | 座北朝南 Facing south | |
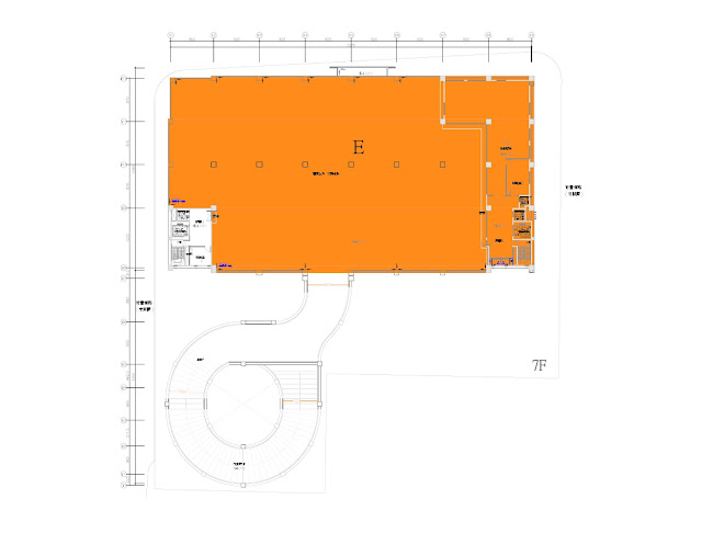
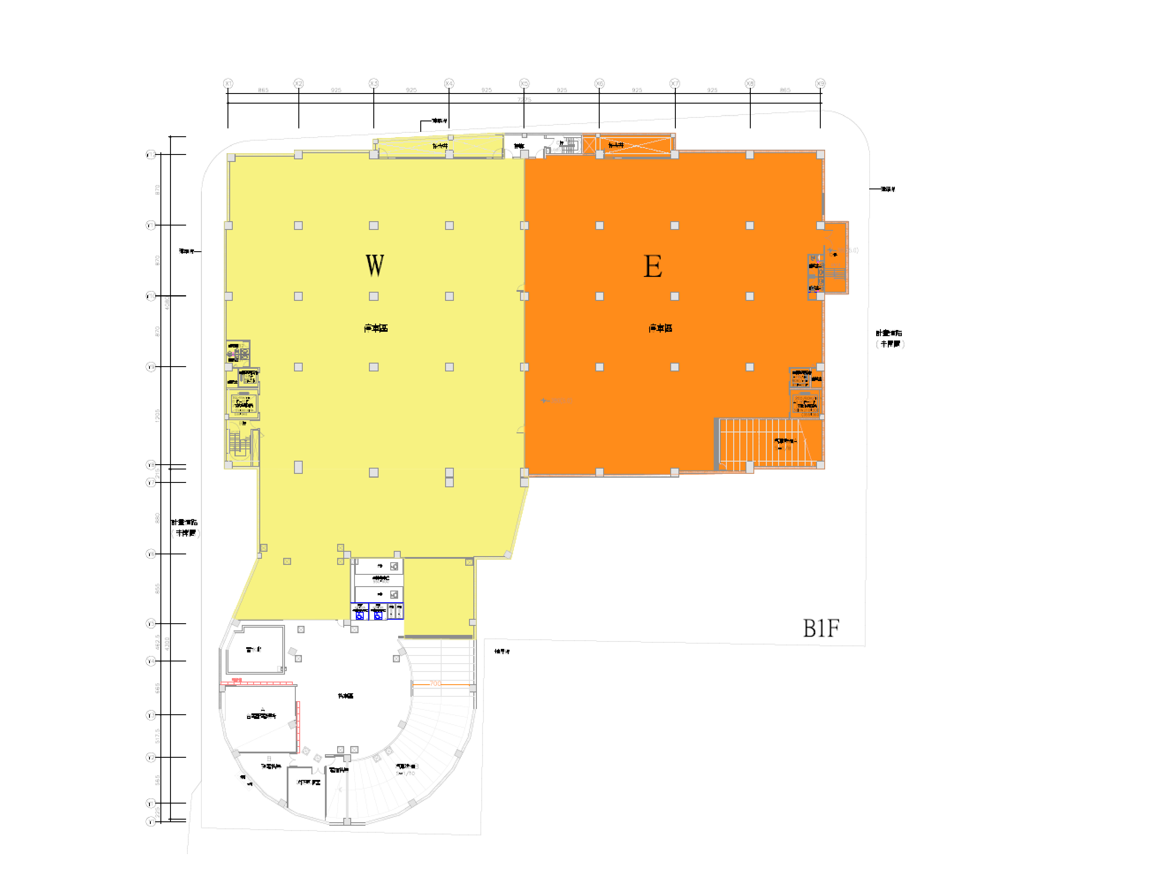
樓別 / 樓高 Building Type / Building Height / Type | 1-9+B1 / 9 / 大樓 1-9+B1 / 9 / Building | |
房屋用途 / 土地分區 Housing Use / Land zoning | 廠辦用 / 乙種工業區 Factory and office use / Type B Industrial Zone | |
月管理費 Monthly management fee | 321800 元 / 月 321800 Yuan / Month | |
管理方式 Management | 警衛管理 Guard management | |
建物結構 Building structure | 鋼筋混凝土造 Reinforced concrete | |
外牆建材 Exterior wall building materials | 方塊磚 Brick | |
車 位 Parking | 坡道平面車位 Ramp level parking space | |
分項面積Itemized area : | ||
主建物 Main building ㎡ | 8045.18 坪 26595.64 ㎡ | |
附屬建物 Ancillary building ㎡ | 0 坪 0 ㎡ | |
公共設施 Public Utilities ㎡ | 0 坪 0 ㎡ | |
車位坪數 Parking ㎡ | 0 坪 0 ㎡ | |
權狀總坪數 Total weight ㎡ | 8045.18 坪 26595.64 ㎡ | |
特色說明Features : | ||
1. 立體車道寬7M,生產、倉儲 進出便利 2. 有貨櫃車專用碼頭,有承重3噸大貨梯 3. 可廠登、營登,每層皆有專屬車位數個 4. 環漢路旁,臨板橋、樹林、近65快、國道3 5. 地板承重590kg/㎡,樓高5.3m 、樑下4.3m ~~ 洽詢麻煩直接來電,留言無法即時回覆,謝謝!! ~~ **歡迎同業配合** 龍邑不動產 龍揚地政士--關於我們 本公司為仲介+代書的雙理財團隊,以安全、合理與效率為經營理念;一個重視交易安全、合理交易與服務迅速的團隊,以增進不動產物件的流通速度,每年協助數百位在地人成家、創業與房產理財,並獲得地方一致的肯定。 龍邑不動產以E化行銷,雲端房仲為目標,為您實現遠距看屋,在安全交易的前提下,達成效率配對迅速成交。龍邑不動產讓您房產交易更為”容易”。 而龍揚地政士代書事務所除了房屋買賣外,各種的不動產移轉、貸款、稅務節稅等皆可辦理服務,我們朝成為客戶心目中的不動產理財顧問而努力。 另外本公司有資產管理信託規劃部門,讓您的房產保全與資產獨立,協助您達成房產隱匿、破產隔離、債權保護、保護弱勢、老年安養、遺產紛爭解決、完成心願與遺願規劃。您將發現,房產可以為您做更多。 我們以專業為本,安全為核心,只有我們能給您全方位房產理財服務,歡迎來電(店)感受我們的不同。 | ||
看屋聯絡資訊See house contact information: | ||
龍邑不動產 請來電洽詢業務人員小姐 | ||
聯絡電話(TEL):【 02-89923066 】 | ||
E-mail:mf_gem@hotmail.com | ||
物件照片































